125 EVOLUTION
P20 PROFILES
The “FINE P20” profiles, 20 mm, elegant and functional, are ideal for both indoor and outdoor use. The Italian design combines aesthetics and practicality, making them perfect for any type of access. Equipped with brushes and seals, they ensure high performance and a flawless finish.

TECHNICAL DATA
Interior / Exterior
125 X 150 mm
1 Leaf: Clear Opening Width 800 – 2000
Clear Opening Height 1900 – 3000
2 Leaves: Clear Opening Width 800 – 3000
Clear Opening Height 1900 – 3000
1 Leaf: Max 150 Kg
2 Leaves: Max 120 Kg + 120 Kg
0,3 – 0,8 m/s (adjustable)
0 : 20 sec (adjustable)
230 Vac 50/60 Hz
Max 300W/230V power consumption
< 7,2 W power consumption in sleeping mode
-15° C + 50° C
Intensive use 100%
Tested 2,000,000 cycles (4,000 cycles/day)
P20 Profiles 20 mm (Laminated Glass 44,2 or 55,1)
To the wall, between the walls, under the ceiling, with top installation screen, in the wall
Anodized
Aluminium
Natural RAL color
Different color options
- Sensors
- Buttons
- Access Control
- RFID Technology
- External Key
- Time Slot Management
- Closed
- Exit Only
- Bidirectional
- Entry Only
- Open
- Manual
- Reduced Winter Opening Parameter Adjustment
- Password Management
- Language Selection
- Diagnostics
Optional
Optional
Included, activable with sensors with direction reading
Included
- EN 16005
- EN 13849-1
- EN 13849 -2
- EN 61000-6-2
- EN 61000-6-3
- EN 60335-2-103
- DIN 18650-1
- DIN 18650-2
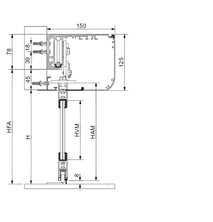
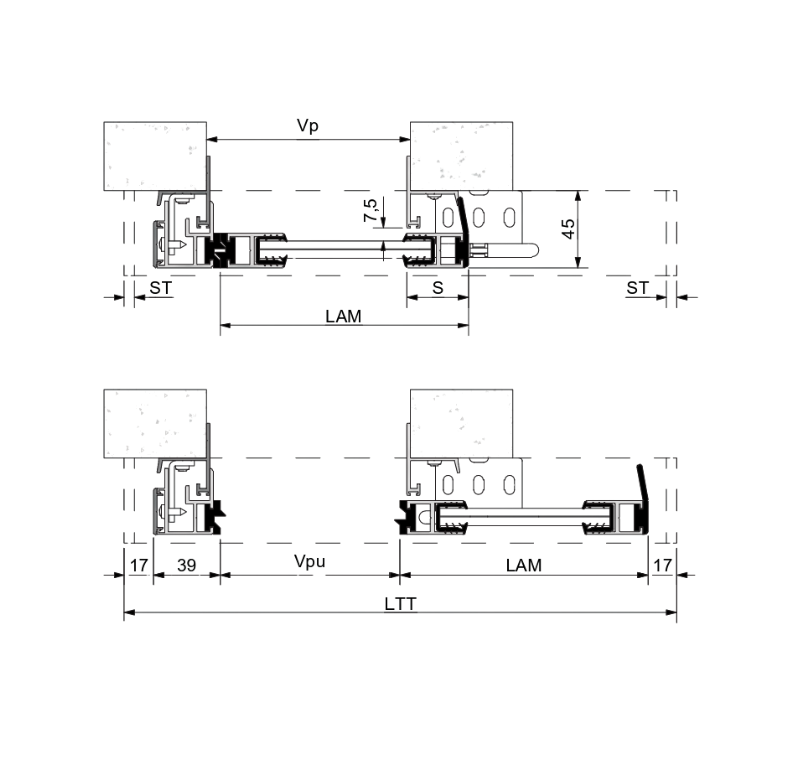
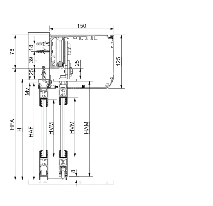
DIMENSIONS

Vp = 800 – 2000 mm
H = 1900 – 3000 mm
Vpu = 800 – 3000 mm
Hpu = 1900 – 3000 mm
LTT = 1680 – 7000 m

Vp = 800 – 3000 mm
H = 1900 – 3000 mm
Vpu = 800 – 3000 mm
Hpu = 1900 – 3000 mm
LTT = 1680 – 7000 m
LEGENDA
Vp = Wall Frame Width
H = Wall Frame Height
Vpu = Clear Opening With
Hpu = Clear Opening Height
LTT = Automation Length

Vp = 1700 – 6900 mm
H = 1950 – 3000 mm
Vpu = 800 – 2000 mm
Hpu = 1900 – 2970 mm
LTT = 1770 – 7000 mm

Vp = 1800 – 6900 mm
H = 1950 – 3000 mm
Vpu = 800 – 3360 mm
Hpu = 1900 – 3000 mm
LTT = 1850 – 7000 m
DRAWINGS
VERTICAL SECTION
HORIZONTAL SECTION


VERTICAL SECTION
HORIZONTAL SECTION

