125 EVOLUTION
SEMI TRANSPARENT

The “Semi Transparent” version combines aluminum profiles on the top and bottom of each leaf, with tempered glass for added security. This system, which combines strength and elegance, is perfect for interior spaces and can be customized based on specific needs.

TECHNICAL DATA

Interior / Exterior

140 X 150 mm

1 Leaf: Clear Opening Width 800 – 2000
            Clear Opening Height 1900 – 3000

2 Leaves: Clear Opening Width 800 – 3000
            Clear Opening Height 1900 – 3000

1 Leaf: Max 150 Kg
2 Leaves: Max 120 Kg + 120 Kg

0,3 – 0,8 m/s (adjustable)

0 : 20 sec (adjustable)

230 Vac 50/60 Hz
Max 300W/230V power consumption
< 7,2 W power consumption in sleeping mode

-15° C + 50° C

Intensive use 100%

Tested 2,000,000 cycles (4,000 cycles/day)

Laminated Glass 55.1, Toughened Glass 10 or 12 mm

To the wall, between the walls, under the ceiling, with top installation screen, in the wall

Anodized
Aluminium
Natural RAL color

Different color options

  1. Sensors
  2. Buttons
  3. Access Control
  4. RFID Technology
  5. External Key
  6. Time Slot Management
  1. Closed
  2. Exit Only
  3. Bidirectional
  4. Entry Only
  5. Open
  6. Manual
  7. Reduced Winter Opening Parameter Adjustment
  8. Password Management
  9. Language Selection
  10. Diagnostics

Optional

Optional

Included, activable with sensors with direction reading

  • EN 16005
  • EN 13849-1
  • EN 13849 -2
  • EN 61000-6-2
  • EN 61000-6-3
  • EN 60335-2-103
  • DIN 18650-1
  • DIN 18650-2

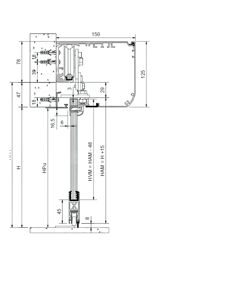
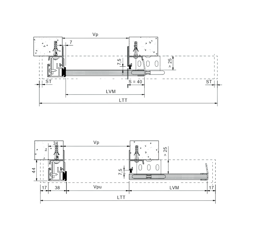
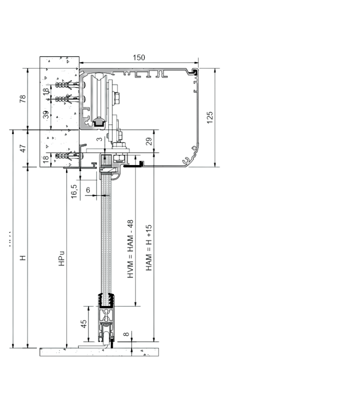
DIMENSIONS

Vp = 800 – 2000 mm
H = 1900 – 3000 mm
Vpu = 800 – 2000 mm
Hpu = 1900 – 2970 mm
LTT = 1712 – 7000 mm

Vp = 800 – 3000 mm
H = 1900 – 3000 mm
Vpu = 800 – 3000 mm
Hpu = 1900 – 3000 mm
LTT = 1724 – 7000 mm

AGENDA

Vp = Wall Frame Width
H = Wall Frame Height
Vpu = Clear Opening With
Hpu = Clear Opening Height
LTT = Automation Length
Sd = Safety Distance

Vp = 1600 – 6950 mm
H = 1900 – 3000 mm
Vpu = 770 – 2000 mm
Hpu = 1900 – 3000 mm
LTT = 1665 – 7000 mm 
Sd = 6 (min)

Vp = 1700 – 6950 mm
H = 1900 – 3000 mm
Vpu = 800 – 3400 mm
Hpu = 1900 – 3000 mm
LTT = 1734 – 7000 mm 
Sd = 6 (min)

DRAWINGS

VERTICAL SECTION

HORIZONTAL SECTION

VERTICAL SECTION

HORIZONTAL SECTION

REQUEST A CONSULTATION